Projektet Solängens Ekoby är dessvärre nedlagt!

Slutgiltigt beslut taget 29.e April 2025 -

Mark- och Miljööverdomstolen ger inte prövningstillstånd!


Nedan går det att läsa lite om vad som hänt under projektets gång:


Uppdatering om läget:

29 April 2025:

Mark- och Miljööverdomstolen ger inte prövningstillstånd. Mark- och Miljööverdomstolens beslut står därför fast 

28 Januari 2024:

Ingemar Arvidsson projektledare samt Jörgen Johansson, ordförande i Glimåkra Utveckling. Har fått fullmakt att överklaga Länsstyrelsens beslut om strandskyddsdispens för nybyggnad av Solängens Ekoby till mark och miljödomstolen i Växjö. Överklagan gäller Länsstyrelsens i Skånes ärende 42341-2022

Juli 2024:

Mark- och Miljödomstolen från Växjö har kallat till förhandling och besiktning av området. Samlingen startar i Glimåkra Församlingshem klockan 13.00 den 22.e Augusti. Jörgen Johansson och Ingemar Arvidsson är kallade. Övriga intresserade får vara närvarande men får inte delta i förhandlingen. De utredningar som tog fram inom projektet används nu både av Linnéuniversitetets utbildning av byggnadsingenjörer och inom distanskurser. Österänggymnasiet har även ordnat ett tillfälle under våren 2024 för gymnasieelever inom natur- och teknik.

29 November 2024:

Avslog Mark- och miljödomstolen vår överklagan av Länsstyrelsen i Skånes beslut från 2023-12-18 om upphävande av strandskyddsdispensen för Solängens Ekoby


17 December 2024:

Lämnade projektgruppen för Solängens Ekoby in en överklagan till Mark- och miljö överdomstolen på beslutet i Mål 39-24 att avslå vår tidigare överklagan av Länsstyrelsen i Skånes beslut

Projektets förstudie finansierat med hjälp av bidrag från


Skåne Leader ESS
Europeiska Regionala Utvecklingsfonden

Projekt:

Solängens Ekoby

Vad var Solängens Ekoby tänkt att bli?

Beskrivning och fakta om hur husen var tänkta att vara utformade!

Husen är byggda med material som knyter an till Glimåkra som en del av Småländska höglandets stora skogsområden. Trästommen av lättbalk, väggar med råspontbrädor innanför gips och den utvändiga träpanelen har gett oss hus med minimalt klimatavtryck och lägsta livscykelkostnaden. Vi har en masteruppsats från LTH som bekräftar detta. Inga material som kan avge farliga ämnen kommer att finnas

Ytbehandlingen av granpanelen med järn- och kopparvitriol ger fasaderna en varm naturlig färg av åldrat trä som låter husen smälta in i naturen. Fönstrens omfattningar samt takskägg är målade i en lite morsk murrig röd ton.
Papptakens lite kärva svärta kontrasterar snyggt mot de moderna solfångarna och solcellerna.
Energiförbrukning för uppvärmning är så låg att husen med god marginal klarar passivhusgränsen som är 17 watt per kvadratmeter, de ligger på 12 – 15 watt! Det innebär mycket låg kostnad. De större husen på 4 rum och kök kommer dessutom att få en tung eldstad som kan värma hela lägenheten och skapa mys framför glasluckan.
Givetvis kommer värmeväxlare att finnas för ventilation så att den varma luftens energi återvinns.
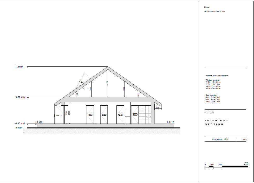
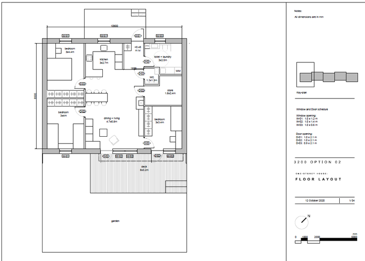
Husen byggs i 1 plan och handikappanpassas såväl in- som utvändigt

Rumsbeskrivningar:

Entré med klinkergolv. Gästtoalett (i 4 r.o.k.) och badrum/tvättstuga med plastmatta. Badrum med dusch, tvättställ, toalett, handdukstork och LED-lampor. Sovrum med linoleumgolv och många garderober. Förråd med solfångartankar men även plats för övrigt som man behöver lite oftare. Vardagsrum med linoleumgolv och fönster/utgång mot uteplats och den gemensamma ängen i sydöst, LED-lampor. Kök med linoleumgolv. I köket finns induktionshäll, ugn, micro, kyl/frys och diskmaskin.
På vinden kan man inreda ytterligare förråd för sådant man inte behöver så ofta

Uteplatser:

Utanför entrén mot nordväst finns en mindre uteplats där man kan sitta på kvällen och se solen gå ner bakom den vackra högstammiga grova skogen som kommunen sköter som park.
I sydöst finns den större uteplatsen med utsikt mot byn som kan anas på andra sidan den stillsamt flytande åfåran


Byggnad

Byggstatus:

Aktuellt läge i projektet idag

"Hösten 2020 var vår Leaderstödda förstudie färdig. Sedan startade kommunen en fördjupad översiktsplan för att se om man skulle kunna lägga ut exploatering av olika aktiviteter inom strandskyddat område. Vårt utredningsområde blev antaget av kommunfullmäktige senvåren 2022 och sedan ansökte vi om att kommunen skulle bevilja dispens. Ärendet kommer tas upp i byggnadsnämnden under hösten. Efter det kommer vi på något sätt kalla intresserade till möte för att komma vidare"

"Kommunen beviljade strandskyddsdispens 29 nov. 2022. Länsstyrelsen hade tre veckor på sig att överpröva beslutet. Det gjorde de genom att kräva ytterligare förklaringar till varför kommunen beviljat dispens! Vårt kommunalråd Patric Åberg, härsknade till och kontaktade landshövdingen och jag (Ingemar Arvidsson) kontaktade "naturprövningsenheten på länsstyrelsen" och bjöd in dem så snart som möjligt. Nu för vi se när de "får tid" Ytterligare sex personer har anmält intresse under 2022 och 2023!"

Boarea:

1 r.o.k. ca 40 kvm, 3 r.o.k. ca 80 kvm och 4 r.o.k. ca 100 kvm (Areauppgifter enligt ritningar)

Övriga byggnader:

I södra delen av området planeras en gemensam byggnad som kan användas för sammankomster inom föreningen, fester, gemensam barnpassning, vävstuga ….
En gemensam återvinningscentral kommer att byggas i nordväst vid parkeringsplatserna.
För avloppshantering byggs även en mindre byggnad i sydöst med en separat väg för tankbil, i den kommer troligtvis även ett batterilager att finnas.

Bad-, disk- och tvättvatten kommer att infiltreras lokalt medan toalettvattnet hanteras med vakuumtoaletter till tank för att minimera vattenförbrukning. Detta töms 2ggr per år och körs till reningsverk

Fastighetsbeteckning:

Troligen Glimåkra 37:?
Alla husen kommer att ligga på en ny avstyckning från kommunens fastighet. Areal är okänd ännu

Övrigt om området:

Mysigt område på före detta gammal betesmark i bästa sydöstläge. Solen kommer tidigt smygande över träden längs ån och försvinner omkring 14.00 bakom den vackra skogen i väster.
Stenmuren i västra delen av området är mycket gammal och utgör gränsen mellan Kilinge och Glimåkra byar.
Infarten från vägen Osby – Glimåkra byggs väster om stenmuren för att separera den från de interna bilfria vägarna inom området.
Området kommer dels att få ett internt system av gång/cykelleder dels anslutas till Glimåkra genom två träbroar över ån.
Om man är intresserad av hästar så kan man följa den vackra stigen 600 meter genom kommunens park, norrut till ridhuset

Har ni frågor om projektet Solängens ekoby?

Vill ni veta mer om hur projektet var tänkt att bli?

Projektansvarig: Ingemar Arvidsson

Tel: 070 286 08 32

Namn E-post Meddelande Jag accepterar reglerna och villkoren och integritetspolicyn Skicka in